P2097-DOWNSTREAM FUEL TRIM SYSTEM 1 RICH





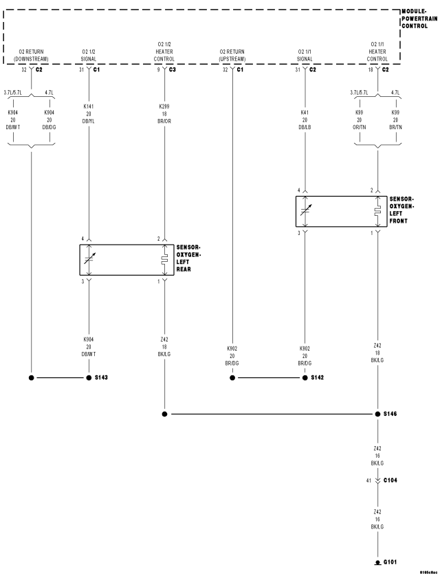
For a complete wiring diagram Refer to Section 8W.


  • When Monitored:

    With the engine running in closed loop mode, the ambient/battery temperature above -6.7°C (20°F) and altitude below 2590.8 m (8500 ft).

  • Set Condition:

    If the PCM multiplies short term compensation by long term adaptive as well as a purge fuel multiplier and the result is below a certain value for a calibrated time over two trips, a freeze frame is stored, the MIL illuminates and a trouble code is stored. Two Trip Fault. Three good trips to turn off the MIL.


Possible Causes
 
EXHAUST LEAK
 
ENGINE MECHANICAL
 
1/2 O2 SENSOR
 
(K141) O2 SENSOR 1/2 SIGNAL CIRCUIT
 
(K299) O2 HEATER 1/2 CONTROL CIRCUIT
 
(K904) O2 RETURN DOWNSTREAM CIRCUIT
 
FUEL CONTAMINATION
 


Always perform the Pre-Diagnostic Troubleshooting procedure before proceeding. (Refer to 9 - ENGINE - DIAGNOSIS AND TESTING).



Diagnostic Test

1.ACTIVE DTC

NOTE: Check the vehicle repair history. If the 1/2 O2 has been replaced make sure that the O2 sensor was properly installed and meets OEM specification.

NOTE: Check for contaminants that may have damaged the O2 Sensor: contaminated fuel, unapproved silicone, oil and coolant.





NOTE: It may be necessary to drive the vehicle to meet the conditions to set this DTC, try to repeat the conditions in which the fault originally set by reviewing the Freeze Frame data.



Is the DTC Active or Pending at this time?

Yes
  • Go To 2


No

2.CHECKING THE EXHAUST SYSTEM FOR LEAKS



WARNING: The normal operating temperature of the exhaust system is very high. Never work around or attempt to service any part of the exhaust system until it has cooled. Special care should be taken when working near the catalytic converter. The temperature of the converter rises to a high level after a short period of engine operating time



CAUTION: The air pressure must not exceed 27.6 kPa (4 psi), otherwise engine damage can occur.















Type 1 Leak

Type 2 Leak


Leak Location
 
Repair required if results at 27.6 kPa (4 psi) reveal bubble size:
 
Welded joints
 
Type 1, 1 mm (0.04 of an inch) or greater
 
O2 Sensor seal points
 
Type 1, 1 mm (0.04 of an inch) or greater
 
O2 Sensor boss welds
 
Type 1, 1 mm (0.04 of an inch) or greater
 
Flange / joint connections
 
Type 2, 8 mm (0.3 of an inch) or greater
 
Exhaust Manifold to cylinder head connections
 
Type 2, 8 mm (0.3 of an inch) or greater
 
EGR gasket and tube seal points
 
Type 2, 8 mm (0.3 of an inch) or greater
 





Were any exhaust leaks found?

Yes


No
  • Go To 3

3.ENGINE MECHANICAL













Are there any engine mechanical problems?

Yes


No
  • Go To 4

4.O2 SENSOR








NOTE: The voltage should drop from 5.0 volts to 2.5 volts with the jumper wire in place.



Did the O2 Sensor volts change from 5.0 volts to 2.5 volts?

Yes


No
  • Go To 5

5.(K141) O2 SENSOR 1/2 SIGNAL CIRCUIT





Is the voltage above 4.8 volts?

Yes
  • Go To 6


No
  • Check the (K141) O2 Sensor 1/2 Signal circuit for an open or short to voltage. Inspect the O2 Sensor connector and the PCM harness connector. If OK, replace and program the Powertrain Control Module per Service Information.
  • Perform the POWERTRAIN VERIFICATION TEST. (Refer to 9 - ENGINE - STANDARD PROCEDURE)

6.(K299) O2 SENSOR 1/2 HEATER CONTROL CIRCUIT OPEN







Is the resistance below 5.0 ohms?

Yes
  • Go To 7


No

7.(K904) O2 RETURN DOWNSTREAM CIRCUIT





Is the voltage at 2.5 volts?

Yes


No
  • Check the (K904) O2 Return Downstream circuit for a short to ground, open, or short to voltage. Inspect the O2 Sensor connector and the PCM harness connector. If OK, replace and program the Powertrain Control Module per Service Information.
  • Perform the POWERTRAIN VERIFICATION TEST. (Refer to 9 - ENGINE - STANDARD PROCEDURE)