P0113-INTAKE AIR TEMPERATURE SENSOR CIRCUIT HIGH





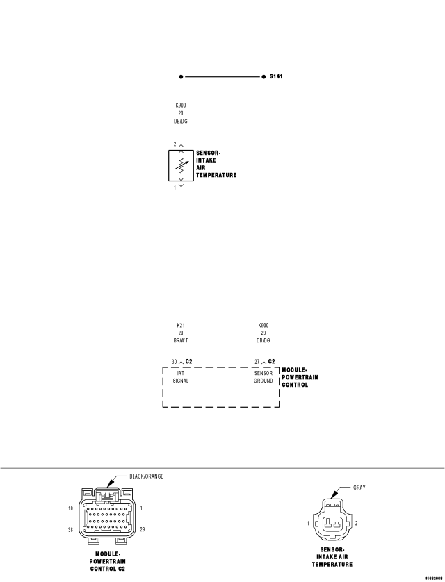
For a complete wiring diagram Refer to Section 8W.


  • When Monitored:

    With the ignition on. Battery voltage greater than 10.4 volts.

  • Set Condition:

    The Intake Air Temperature (IAT) sensor circuit voltage at the PCM goes above 4.98 volts for 2.8 seconds. One Trip Fault. Three good trips to turn off the MIL.


Possible Causes
 
(K21) IAT SIGNAL CIRCUIT SHORTED TO BATTERY VOLTAGE
 
(K21) IAT SIGNAL CIRCUIT OPEN
 
(K900) SENSOR GROUND CIRCUIT OPEN
 
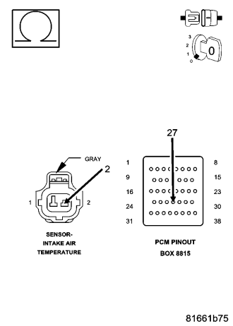
IAT SENSOR
 
PCM
 


Always perform the Pre-Diagnostic Troubleshooting procedure before proceeding. (Refer to 9 - ENGINE - DIAGNOSIS AND TESTING).



Diagnostic Test

1.IAT SENSOR VOLTAGE ABOVE 4.98 VOLTS




Is the voltage above 4.98 volts?

Yes
  • Go To 2


No

2.IAT SENSOR









Is the voltage below 1.0 volt with the jumper wire installed?

Yes


No
  • Go To 3

    NOTE: Remove the jumper wire before continuing.


3.(K21) IAT SIGNAL CIRCUIT SHORTED TO BATTERY VOLTAGE







Is the voltage above 0 volts?

Yes


No
  • Go To 4

4.(K21) IAT SIGNAL CIRCUIT OPEN




CAUTION: Do not probe the PCM harness connectors. Probing the PCM harness connectors will damage the PCM terminals resulting in poor terminal to pin connection. Install Miller Special Tool #8815 to perform diagnosis.




Is the resistance below 5.0 ohms?

Yes
  • Go To 5


No

5.(K900) SENSOR GROUND CIRCUIT OPEN





Is the resistance below 5.0 ohms?

Yes
  • Go To 6


No

6.PCM

NOTE: Before continuing, check the PCM harness connector terminals for corrosion, damage, or terminal push out. Repair as necessary.




Were there any problems found?

Yes


No