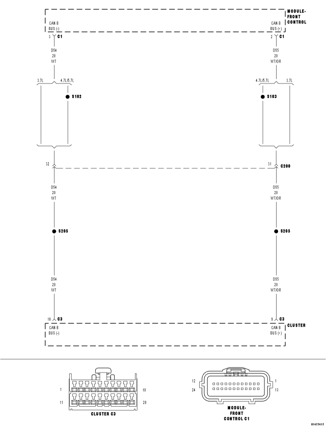
U0019–CAN B BUS





For a complete wiring diagram Refer to Section 8W.


  • When Monitored:

    With the Instrument Cluster awake.

  • Set Condition:

    Whenever the Can B Bus (+) or B Bus (–) circuit is open, shorted to voltage or shorted to ground, this code will set.


Possible Causes
 
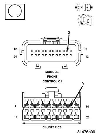
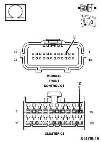
CAN B BUS DTCs IN FRONT CONTROL MODULE
 
(D54) CAN B BUS (–) CIRCUIT OPEN
 
(D55) CAN B BUS (+) CIRCUIT OPEN
 
INSTRUMENT CLUSTER
 




Diagnostic Test

1.CHECK FOR AN ACTIVE DTC







Is the DTC active?

Yes
  • Go To 2


No
  • The condition that caused this code to set is not present at this time. Check for an intermittent condition by inspecting the related wiring harness for chafed, pierced, pinched, and partially broken wires. Also inspect the related connectors for broken, bent, pushed out, spread, corroded, or contaminated terminals.
  • Perform BODY VERIFICATION TEST VER 1. (Refer to 8 - ELECTRICAL/ELECTRONIC CONTROL MODULES - STANDARD PROCEDURE)

2.CHECK FRONT CONTROL MODULE DTCs



Does the scan tool display the U0019–CAN B BUS DTC?

Yes


No
  • Go to 3

3.(D55) CAN B BUS (+) CIRCUIT OPEN









Is the resistance below 2.0 ohms?

Yes
  • Go To 4


No

4.(D54) CAN B BUS (–) CIRCUIT OPEN





Is the resistance below 2.0 ohms?

Yes


No