B1407-FRONT RIGHT AUDIO SPEAKER OUTPUT CIRCUIT OPEN





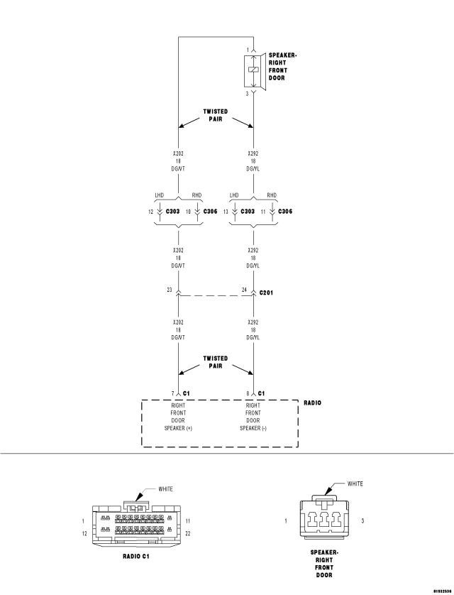
For a complete wiring diagram Refer to Section 8W.


  • When Monitored:
  • With the radio on.
  • Set Condition:
  • When the output circuit is open for more than three seconds. The radio will not set the fault if the radio confirms an amplifier is on the BUS.

Possible Causes
 
SPEAKER
 
(X202) (X292) RIGHT FRONT SPEAKER OUTPUT CIRCUIT
 




Diagnostic Test

1.INTERMITTENT CONDITION






Does the scan tool read: B1407-FRONT RIGHT AUDIO SPEAKER OUTPUT CIRCUIT OPEN?

Yes
  • Go To 2


No
  • The condition that caused the symptom is currently not present. Inspect the related wiring for a possible intermittent condition. Look for any chafed, pierced, pinched, or partially broken wires.
  • Perform the BODY VERIFICATION TEST VER 1.

2.(X202) (X292) SPEAKER OUTPUT CIRCUITS








Is the resistance below 5.0 ohms for each circuit?

Yes
  • Go To 3


No
  • Repair the applicable Output Speaker circuit for an open condition.
  • Perform the BODY VERIFICATION TEST VER 1.

3.










Does the scan tool read: B1407-FRONT RIGHT AUDIO SPEAKER OUTPUT CIRCUIT OPEN?

Yes
  • Replace the Speaker in accordance with the service information.
  • Perform the BODY VERIFICATION TEST VER 1.


No
  • Test Complete.