P0141-O2 SENSOR 1/2 HEATER PERFORMANCE





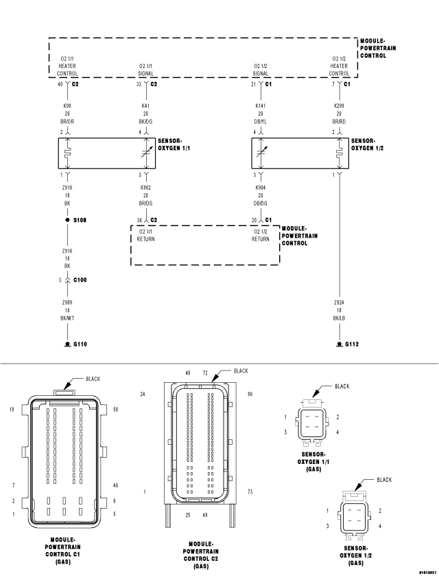
For a complete wiring diagram Refer to Section 8W.

Theory of Operation


The PCM performs a continuous check of the O2 sensor heater circuit during operation. The heater circuit is momentarily disabled to allow a resistance measurement to be taken to infer heater temperature. The current delivery to the heater is duty cycled to maintain a specific target temperature. The error from the target temperature is continuously monitored to assess heater performance.

  • When Monitored:

    With the engine running, O2 sensor heater duty cycle greater than 0%, and battery voltage greater than 11.0 volts.

  • Set Condition:

    The PCM detects no O2 sensor output when the heater is powered up. Two trip fault. Three good trips to turn off the MIL.


Possible Causes
 
(K299) O2 1/2 HEATER CONTROL CIRCUIT OPEN OR HIGH RESISTANCE
 
(Z924) GROUND CIRCUIT OPEN OR HIGH RESISTANCE
 
OXYGEN SENSOR 1/2
 
POWERTRAIN CONTROL MODULE (PCM)
 


Always perform the Pre-Diagnostic Troubleshooting procedure before proceeding. (Refer to 9 - ENGINE - DIAGNOSIS AND TESTING).



Diagnostic Test

1.OXYGEN SENSOR 1/2 HEATER CONTROL OPERATION


NOTE: Wait a minimum of 8 minutes to allow the sensor to cool down before continuing. The sensor voltage should stabilize between 4.6 and 5.0 volts.






Does the voltage stay above 4.5 volts?

Yes
  • Go to 2


No

2.OXYGEN SENSOR 1/2


NOTE: Allow the O2 sensor to cool down to room temperature.




NOTE: The O2 heater element resistance should be measured at 70° F (21.1° C). The resistance value will vary at different temperatures.



Is the resistance between 2.0 and 30.0 ohms?

Yes
  • Go to 3


No

3.(K299) O2 1/2 HEATER CONTROL CIRCUIT OPEN OR HIGH RESISTANCE






Is the resistance below 0.5 ohm?

Yes
  • Go to 4


No

4.(Z924) GROUND CIRCUIT OPEN OR HIGH RESISTANCE




NOTE: The test light should be illuminated and bright. Compare the brightness to that of a direct connection to the battery.



Is the test light illuminated and bright?

Yes
  • Go to 5


No

5.POWERTRAIN CONTROL MODULE (PCM)






Were any problems found?

Yes


No